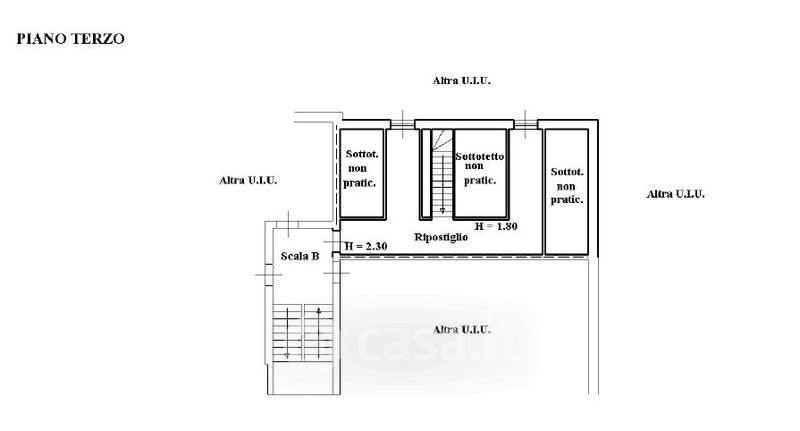
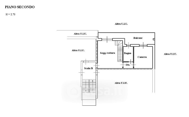
Appartamento in vendita Via Isonzo , Bareggio
Salva
Casa.it
1/33
  • Street View
  • Map