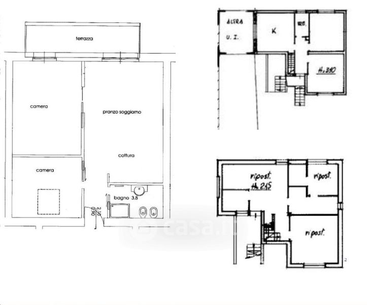
Appartamento in vendita Via Antonio Locatelli 61, Bariano
Salva
Casa.it
1/13
  • Street View
  • Map