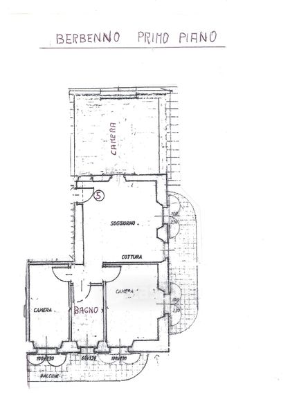
Appartamento in vendita Via Berbenno 40, Berbenno di Valtellina
Salva
Casa.it
1/4
  • Street View
  • Map