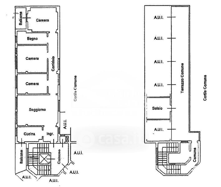
Appartamento in vendita Via Angelo Maj , Bergamo
Salva
Casa.it
1/10
  • Street View
  • Map