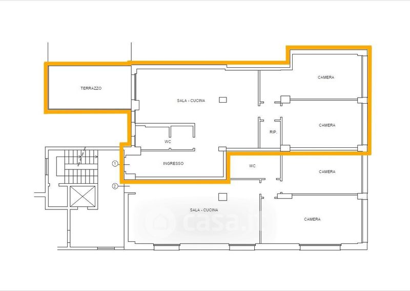
Appartamento in vendita Via Giorgio e Guido Paglia 3, Bergamo
Salva
Casa.it
1/4
  • Street View
  • Map