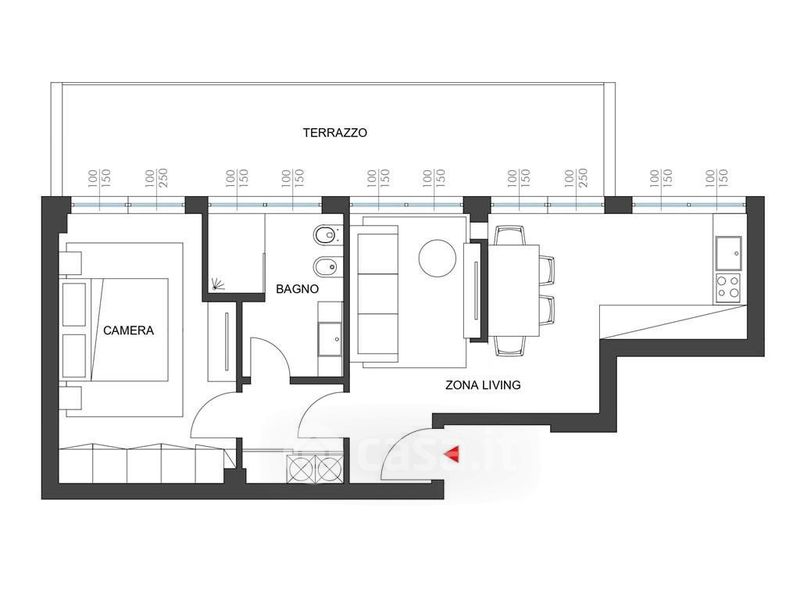
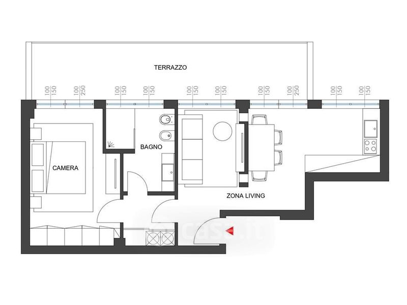
Appartamento in vendita Via degli Albani 12, Bergamo
Salva
Casa.it
1/21
  • Street View
  • Map