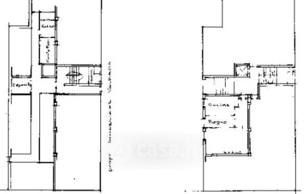
Appartamento in vendita Via Angelo Pinetti 2, Bergamo
Salva
Casa.it
1/20
  • Street View
  • Map