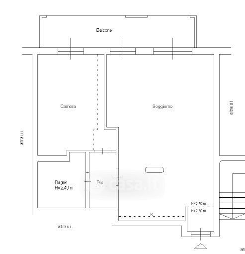
Appartamento in affitto Vicolo Bancalegno , Bergamo
Salva
Casa.it
1/11
  • Street View
  • Map