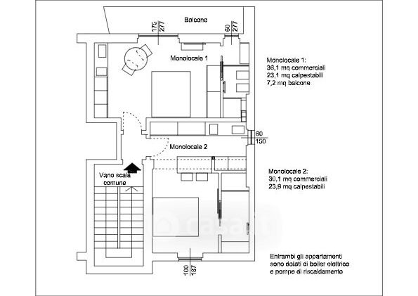
Appartamento in vendita Via Pizzo Tre Signori 5, Bergamo
Salva
Casa.it
1/13
  • Street View
  • Map