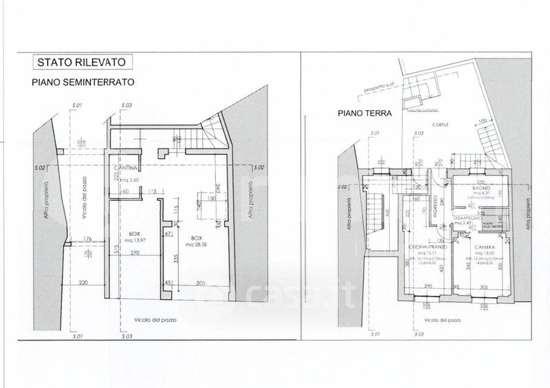
Appartamento in vendita Vicolo del Pozzo 1, Besana in Brianza
Salva
Casa.it
1/12
  • Street View
  • Map