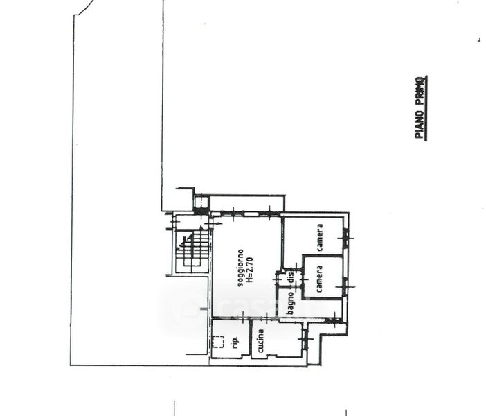
Appartamento in vendita Via Artigiani 10 B, Besana in Brianza
Salva
Casa.it
1/32
  • Street View
  • Map