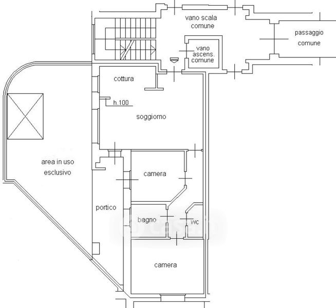
Appartamento in vendita Via Padania , Biassono
Salva
Casa.it
1/30
  • Street View
  • Map