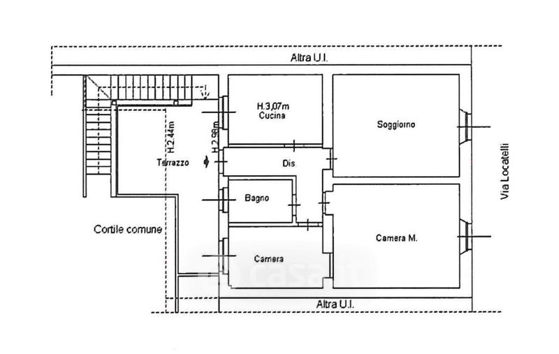
Appartamento in vendita Via A. Locatelli 3, Biassono
Salva
Casa.it
1/21
  • Street View
  • Map