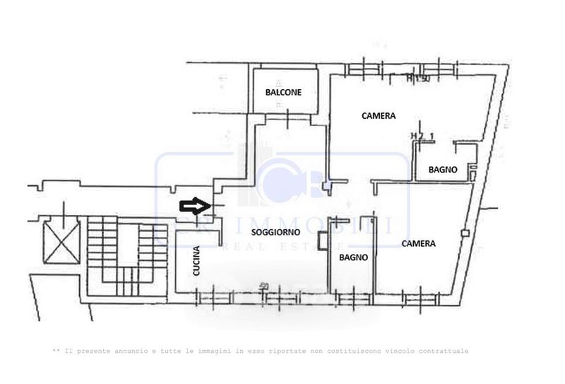
Appartamento in affitto Via Camillo Benso Conte di Cavour 29, Bollate
Salva
Casa.it
1/2
  • Street View
  • Map