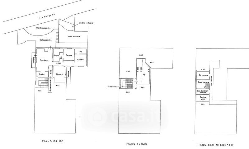
Appartamento in vendita Viale dei Tigli 1, Borgo di Terzo
Salva
Casa.it
1/37
  • Street View
  • Map