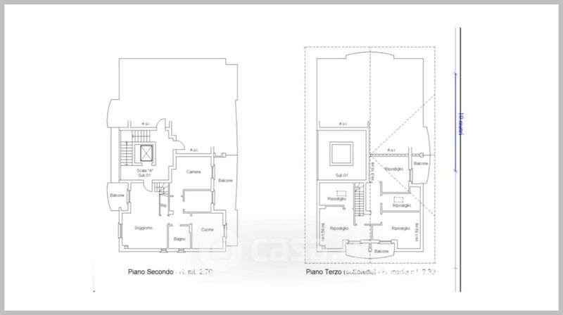
Appartamento in vendita Via Giovanni Pasquini , Borgo San Giacomo
Salva
Casa.it
1/32
  • Street View
  • Map