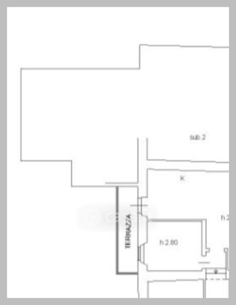
Appartamento in vendita Via dei Pioppi , Borgo San Siro
Salva
Casa.it
1/32
  • Street View
  • Map