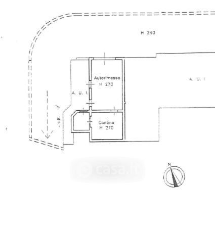
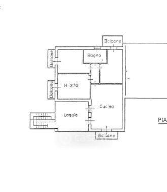
Appartamento in vendita Via Asilo , Bovezzo
Salva
Casa.it
1/50
  • Street View
  • Map