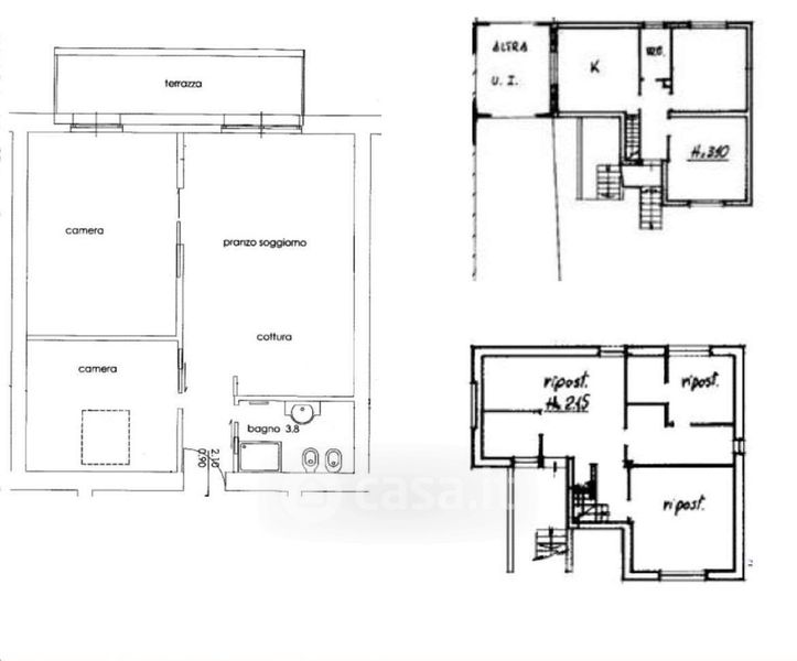
Appartamento in vendita Via Milano 107, Brescia
Salva
Casa.it
1/17
  • Street View
  • Map