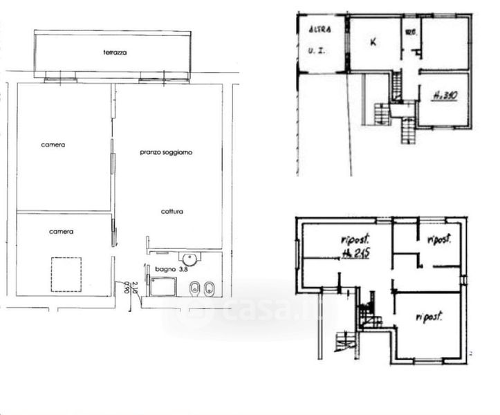
Appartamento in vendita Via Lucio Fiorentini 34, Brescia
Salva
Casa.it
1/17
  • Street View
  • Map