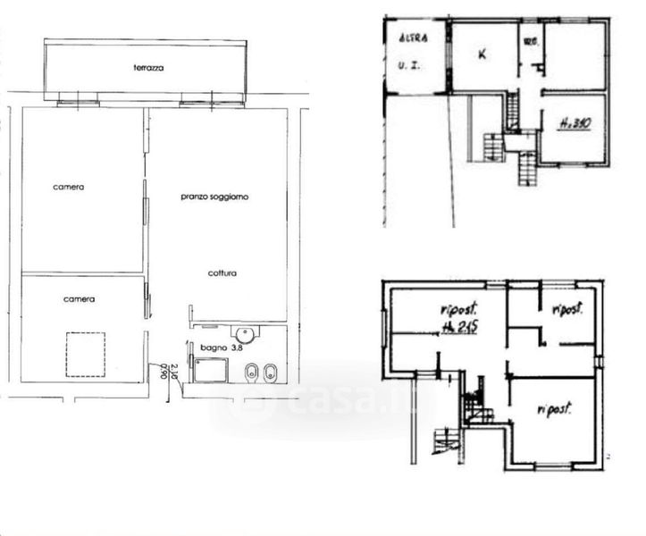
Appartamento in vendita Via Armando Diaz 4 -14, Brescia
Salva
Casa.it
1/17
  • Street View
  • Map