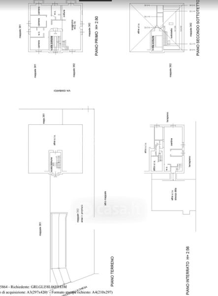
Appartamento in vendita Vicolo della Chiesa 16, Bresso
Salva
Casa.it
1/21
  • Street View
  • Map