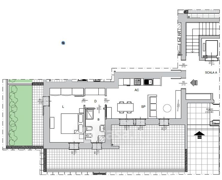
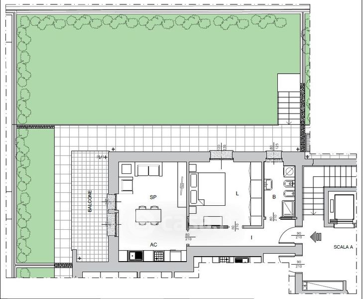
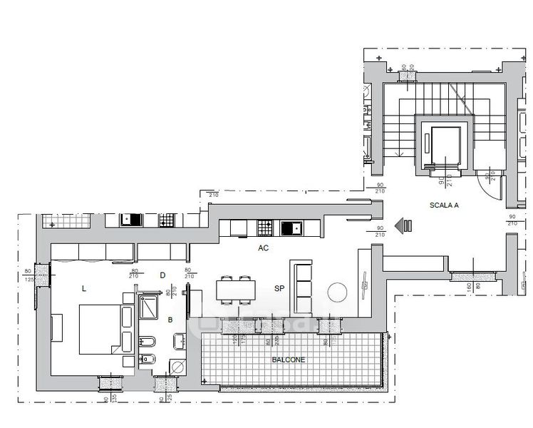
Appartamento in vendita Via della Resistenza 7, Buccinasco
Salva
Casa.it
1/5
  • Street View
  • Map