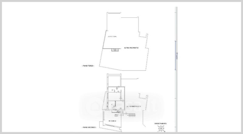
Appartamento in vendita Via Panzeri , Bulciago
Salva
Casa.it
1/33
  • Street View
  • Map