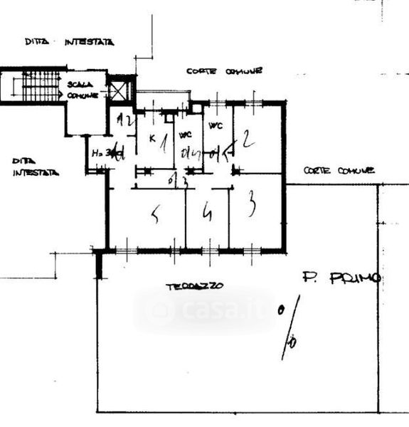
Appartamento in vendita Via A. Gramsci 19, Burago di Molgora
Salva
Casa.it
1/38
  • Street View
  • Map