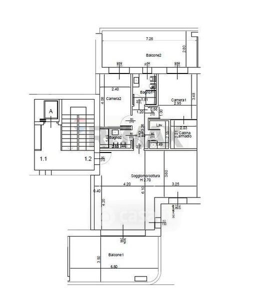
Appartamento in vendita Via Monsignore Paolo Borroni 2, Busto Arsizio
Salva
Casa.it
1/10
  • Street View
  • Map