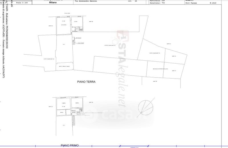
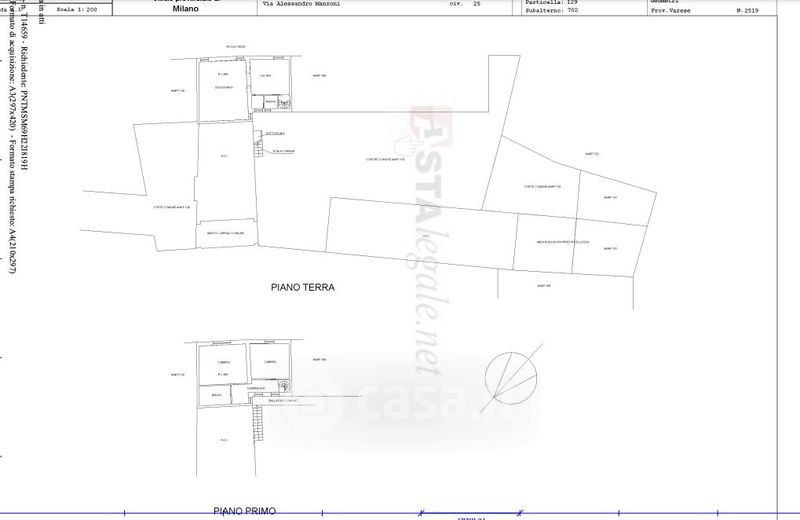
Appartamento in vendita Via manzoni 25, Busto Garolfo
Salva
Casa.it
1/22
  • Street View
  • Map