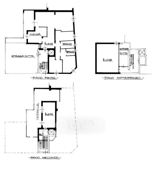
Appartamento in vendita Via Giuseppe Mazzini 2, Busto Garolfo
Salva
Casa.it
1/25
  • Street View
  • Map