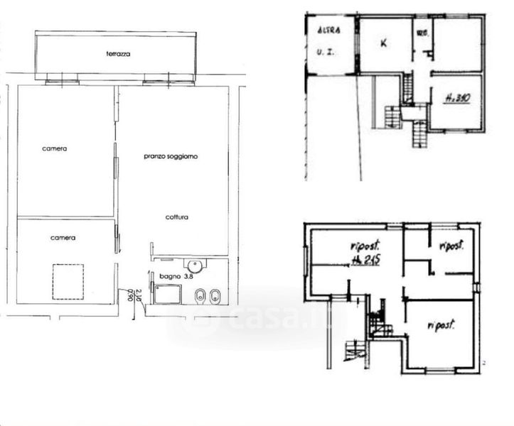
Appartamento in vendita Via San Rocco 1, Caino
Salva
Casa.it
1/30
  • Street View
  • Map