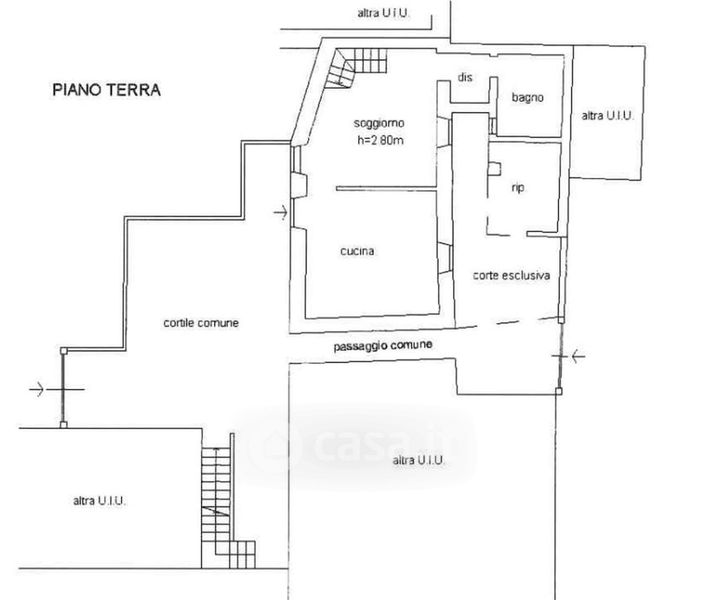
Appartamento in vendita Via Dante Alighieri 31 C, Cairate
Salva
Casa.it
1/28
  • Street View
  • Map