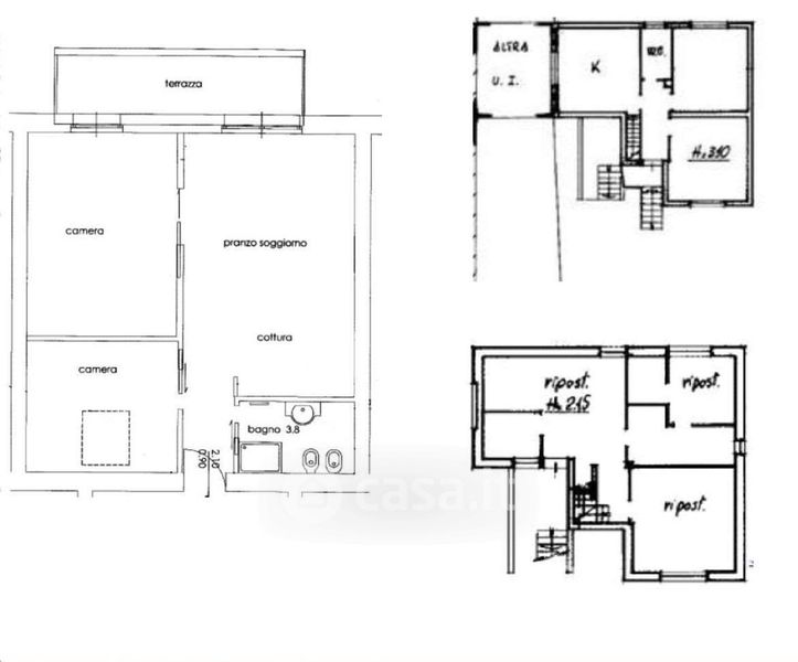
Appartamento in vendita Via Schieppati Franco 8, Calcio
Salva
Casa.it
1/13
  • Street View
  • Map