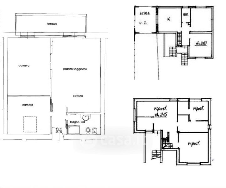
Appartamento in vendita Via Aldo Lusardi 9, Calvenzano
Salva
Casa.it
1/17
  • Street View
  • Map