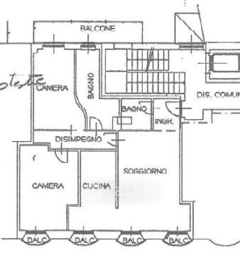
Appartamento in vendita Piazza Giacomo Matteotti 41, Canegrate
Salva
Casa.it
1/19
  • Street View
  • Map