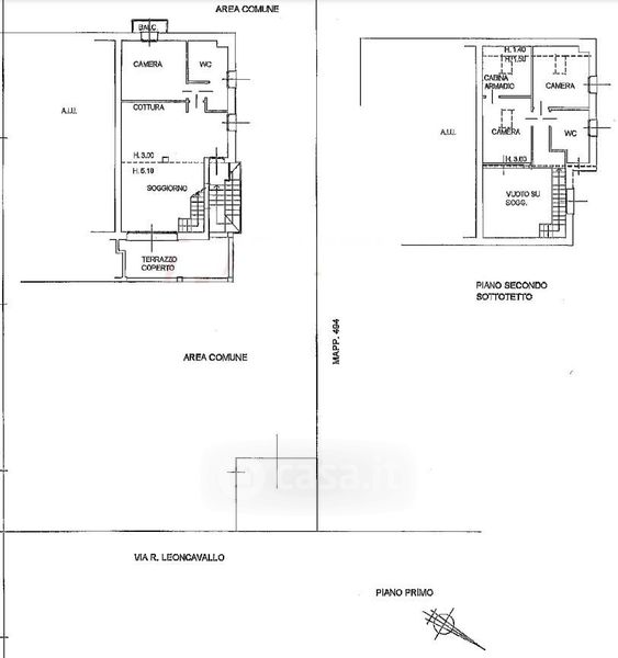
Appartamento in vendita Via Ruggero Leoncavallo 10, Canegrate
Salva
Casa.it
1/17
  • Street View
  • Map