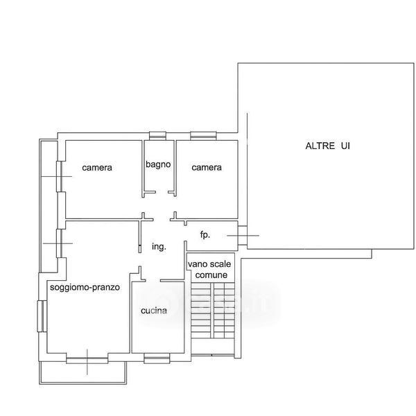
Appartamento in vendita Via Como , Cantù
Salva
Casa.it
1/33
  • Street View
  • Map