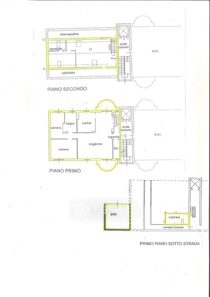
Appartamento in vendita Via Pietro Borsieri , Carate Brianza
Salva
Casa.it
1/41
  • Street View
  • Map