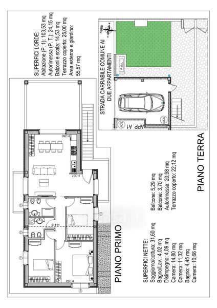
Appartamento in vendita Via Rosario Livatino , Caravaggio
Salva
Casa.it
1/4
  • Street View
  • Map