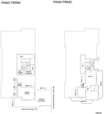
Appartamento in vendita Via Caduti di Nassiriya 5, Carpiano
Salva
Casa.it
1/11
  • Street View
  • Map