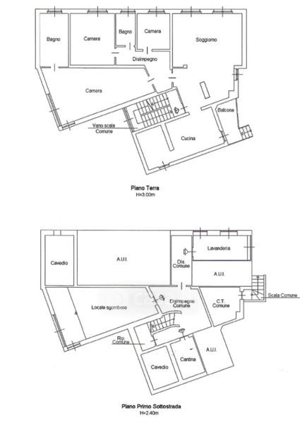
Appartamento in vendita Via Giuseppe Garibaldi 56, Carugo
Salva
Casa.it
1/38
  • Street View
  • Map