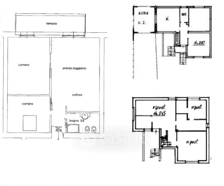
Appartamento in vendita Via Papa Giovanni Paolo II 27, Casaletto Lodigiano
Salva
Casa.it
1/17
  • Street View
  • Map