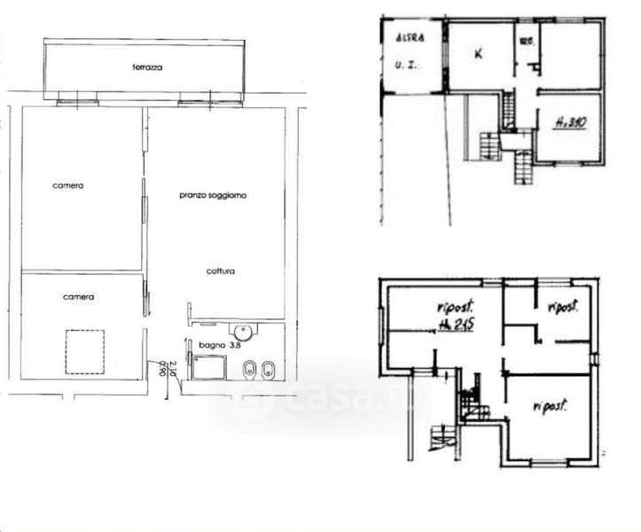
Appartamento in vendita Via Paolo Borsellino 10, Caselle Lurani
Salva
Casa.it
1/13
  • Street View
  • Map