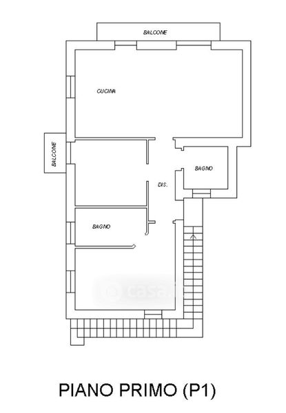
Appartamento in vendita Via Enrico Toti 13, Casorate Sempione
Salva
Casa.it
1/44
  • Street View
  • Map