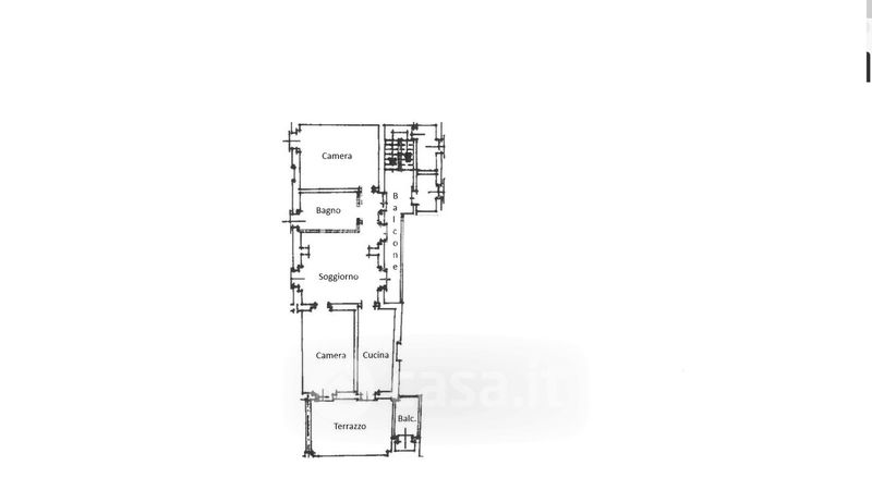
Appartamento in vendita Via Monte Grappa , Cassano d'Adda
Salva
Casa.it
1/20
  • Street View
  • Map