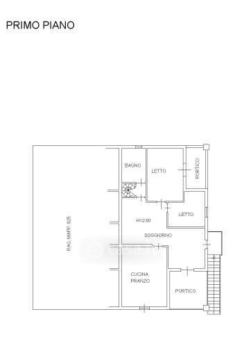
Appartamento in vendita Via Giorgio Gaber , Castel Goffredo
Salva
Casa.it
1/21
  • Street View
  • Map