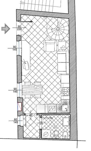
Appartamento in vendita Via Eugenio Cantoni 51, Castellanza
Salva
Casa.it
1/21
  • Street View
  • Map