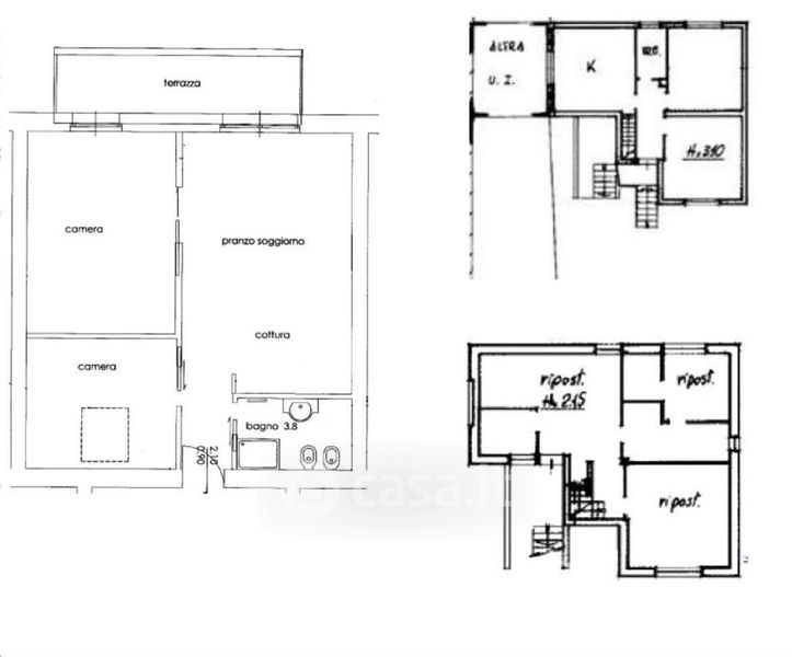
Appartamento in vendita Via Don Primo Mazzolari 15, Castelverde
Salva
Casa.it
1/11
  • Street View
  • Map