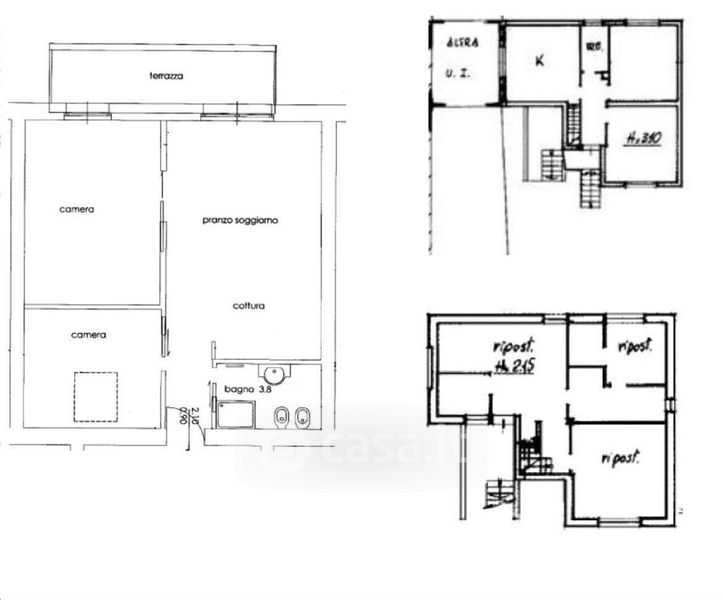
Appartamento in vendita Via Ascoli 37, Castiglione delle Stiviere
Salva
Casa.it
1/17
  • Street View
  • Map