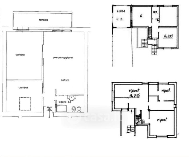
Appartamento in vendita Via John e Robert Kennedy 38, Castiglione delle Stiviere
Salva
Casa.it
1/31
  • Street View
  • Map