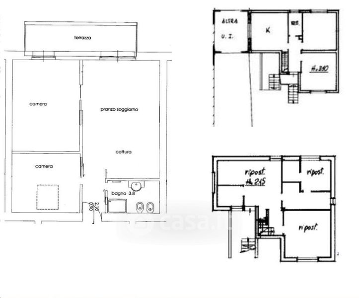
Appartamento in vendita Via Benedetto Croce 23, Castiraga Vidardo
Salva
Casa.it
1/9
  • Street View
  • Map