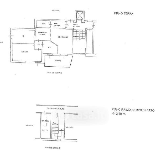
Appartamento in vendita Via Giuseppe Verdi 10, Cernusco sul Naviglio
Salva
Casa.it
1/20
  • Street View
  • Map